
TỔNG QUAN DỰ ÁN CĂN HỘ THE PRIVIA:
➤ Địa chỉ: 158 An Dương Vương, phường An Lạc, quận Bình Tân, HCM
➤ Phát triển dự án: Khang Điền
➤ Tổng diện tích khu đất: 1,85 ha
➤ Quy mô: 3 Blọck, 1.045 căn hộ loại căn từ 1 – 3PN và Shophouse.
➤ Tiện ích nội khu: Siêu thị, công viên, phòng sinh hoạt cộng đồng, hồ bơi, khu vui chơi giải trí, nhà trẻ, quán café….
➤ Tư vấn & Phân phối: MEYREAL
➤ Giá bán: …
Đánh giá The Privia về vị trí
Khu căn hộ The Privia tọa lạc tại vị trí khá đắc địa, sau lưng bến xe Miền Tây kết nối thuận tiện với trung tâm thông qua trục đường Kinh Dương Vương và Võ Văn Kiệt.

Từ khu căn hộ The Privia, cư dân dễ dàng kết nối thuận tiện đến AEON Bình Tân, đến công viên Phú Lâm và đến chợ An Đông 7,7km; cách bệnh viện Gia An 3,7km; cách Go! An Lạc khoảng 5,7km; di chuyển đến chợ Bến Thành 12km;…cũng như các khu vực trung tâm.
Đánh Giá Mặt Bằng Thiết Kế The Privia
Tổng thể dự án The Privia có diện tích 1.85hecta, tổng cộng 1.045 căn hộ bao gồm từ tầng 4 đến tầng 23. Được chia thành 3 block căn hộ ký hiệu Block A, Block B và Block C.

Dự án The Privia không xây hầm. Tầng 1-3 kết hợp shophouse và để xe, tầng 4 là tầng tiện ích, hồ bơi, khu vui chơi trẻ em, khu vực đọc sách, cafe, BBQ…
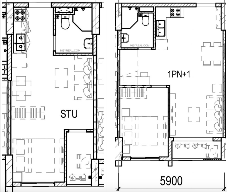
Mặt bằng tầng căn hộ The Privia Block A Thiết kế hình chữ L. Có 18 căn/sàn, 4 thang + 1 thang hàng. Căn hộ bắt đầu từ tầng 4, 1 sàn gồm 2 căn studio, 3 căn 1PN+, 4 căn 3PN.
Mặt bằng tầng căn hộ The Privia Block B Thiết kế chữ I. Có 17 căn/ sàn, 4 thang + 1 thang hàng. Căn hộ bắt đầu từ tầng 5, 1 sàn gồm 7 căn 1PN+, 2 căn 3PN, 8 căn 2PN+.
Mặt bằng tầng căn hộ The Privia Block C Thiết kế hình chữ L. Có 18 căn/sàn, 4 thang +1 thang hàng. 1 sàn có 5 căn 1PN+, 2 căn 3PN, 11 căn 2PN+. Hành lang rộng 1.6m.
Nhìn chung tổng thể thiết kế bên ngoài The Privia theo đánh giá khá giống với các căn hộ trước của Khang Điền như Safira, Jamila và Lovera Vista. Đánh giá The Privia có một số thay đổi chính ở phần tiện ích và vật liệu bàn giao dự kiến sẽ cao cấp hơn những dự án trước.
Đánh Giá The Privia về Layout Thiết Kế


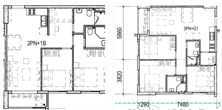
Đánh giá The Privia về thiết kế layout từng căn hộ có nhiều thay đổi so với các dự án căn hộ trước đó của Khang Điền. Có thêm căn hộ studio (căn hộ nhỏ không có ngăn phòng ngủ và phòng khách), tất cả các căn 2PN đều được thiết kế thêm phòng đa năng (thành 2PN +).
Diện tích sử dụng bên trong layout các căn 1PN+ và 2PN+ đều không có sân phơi riêng, ban công được thiết kế thêm lam che để phơi đồ. Chỉ có các căn 2PN+ và 3PN ở góc mới có thiết kế thêm phòng giặt phơi. Đánh giá The Privia về layout thiết kế, đây vừa là điểm cộng vừa là điểm trừ của dự án.
Hành lang căn hộ The Privia rộng 1.6m, 17-18 căn hộ trên 4 thang người, 1 thang hàng (cho tổng cộng 5 thang). Tính ra hơn 64 hộ cho 1 thang máy trong 1 block.
Giá Bán Căn hộ The Privia Bình Tân
Về mức giá bán căn hộ The Privia dự kiến 59tr/m2.
Về tiến độ và phương thức thanh toán căn hộ The Privia cũng tương tự các dự án trước kia của Khang Điền, cơ bản như sau:
– Thanh toán 30% đến khi kí hợp đồng mua bán (đã bao gồm 50 triệu tiền cọc)
– Sau đó mỗi 2 tháng thanh toán 5% và chia thành 8 đợt.
– Nhận bàn giao nhà (dự kiến tháng 7 năm 2020) thanh toán 25% + 2% phí bảo trì và quản lý
– Nhận sổ hồng sau khi thanh toán 5% và kết thúc giao dịch
==> Toàn bộ quá trình thanh toán theo tiến độ trong khoảng 24 tháng, kể từ ngày kí thỏa thuận đặc cọc.
Đánh Giá Tiến Độ The Privia Khang Điền
Do dự án The Privia không xây dựng hầm nên thời gian xây móng sẽ được rút ngắn (khoảng 3 tháng). Vậy tầm tháng 10 thì dự án cơ bản đủ điều kiện mở bán. Đánh giá The Privia về chất lượng xây dựng là khá tốt khi các đối tác nhà thầu thi công và xây dựng đều là các đơn vị uy tín. Các dự án trước của Khang Điền đều mang đến sự hài lòng về chất lượng.

Pháp Lý & Uy Tín Chủ Đầu Tư The Privia
Dự án The Privia trước đây thuộc quy hoạch khu dân cư Lý Chiêu Hoàng, phường An Lạc, quận Bình Tân, do công ty BCCI làm chủ đầu tư (nay là công ty Khang Phúc).
Hiện dự án thuộc về Công ty Cổ phần Đầu tư Kinh doanh Bất động sản Minh An, được thành lập vào ngày 17/04/2017, do ông Đặng Công Tâm làm giám đốc kiêm người đại diện pháp luật của doanh nghiệp.
Công ty Cổ phần Đầu tư Kinh doanh Bất động sản Minh An là thành viên thuộc CTCP Đầu tư kinh doanh Nhà Khang Điền.
Sáng ngày 30/6/2022, chủ đầu tư Khang Điền chính thức làm LỄ KHỞI CÔNG dự án khu căn hộ The PRIVIA cùng tổng thầu An Phong – Đơn vị triển khai thi công xây dựng là An Phong. Giấp phép xây dựng số 34/GPXD do UBND TP.HCM – SỞ XÂY DỰNG, CẤP NGÀY 28/06/2022.
Như vậy dự án đã hoàn thiện về pháp lý. Đơn vị phát triển là Khang Điền đã được chứng minh về sự uy tin với các sản phẩm đã phát triển trước đó, đều có tính pháp lý vững chắc, hoàn thành thủ tục, xây hoàn thành xong mới mở bán.
Tiềm Năng Thị Trường Bất Động Sản Bình Tân
Quận Bình Tân là một trong số các quận có nhiều lợi thế và tiềm năng bất động sản cao, mang đến tỷ suất sinh lời cao cho các nhà đầu tư. Những tiềm năng bất động sản quận Bình Tân cũng đang ngày càng chứng tỏ được sức hút của mình.
Bình Tân cũng vùng có tốc độ tăng trưởng và đô thị hóa nhanh chóng của thành phố Hồ Chí Minh, là nơi cửa ngõ giao thương quan trọng nhằm kết nối các quận, huyện trung tâm thành phố.
Theo các chuyên gia đánh giá The Privia cũng là khu căn hộ cao cấp hiếm hoi được phát triển tại khu Tây Sài Gòn.
MEYREAL TƯ VẤN VÀ PHÂN PHỐI
Sở hữu đội ngũ tư vấn chuyên nghiệp, Meyreal.com hân hạnh được phục vụ khách hàng trong việc lựa chọn căn cùng các giải pháp tài chính, phù hợp với nhu cầu của quý khách hàng.
QUÝ KHÁCH QUAN TÂM VUI LÒNG ĐĂNG KÝ ĐỂ NHẬN THÔNG TIN DỰ ÁN THE PRIVIA TỪ PHÒNG KINH DOANH.
Đại lý Meyreal tư vấn và phân phối dự án căn hộ The Privia Khang Điền.
PHÂN TÍCH TỶ SUẤT LỢI NHUẬN
Nhìn chung về sản phẩm căn hộ tính chất của sản phẩm này là mặt hàng phổ thông. Mà đã là phổ thông thì mức tăng trung bình hàng năm ở mức 10-15% là phù hợp. Nó tùy vào vị trí căn, khả năng khai thác….
– Khả năng lướt sóng:
Trong tình hình hiện nay và trong địa bàn Thủ Thiêm không phải là không có sự lựa chọn nên không nên áp dụng hình thức đầu tư này. Nếu có thể áp dụng thì hãy xem nó là phương án phụ cho tầm nhìn ngắn hạn.
– Lợi nhuận Ngắn hạn:
Thời điểm ngắn hạn là sau khi nhận nhà hoàn thiện. Nhưng thời điểm này thì tỷ suất lợi nhuận sẽ không cao ở mức 15%. Vì sẽ phải qua giai đoạn bán hòa vốn và bán lỗ của một số trường hợp. Chưa kể nếu cao hơn 15% thì người mua sau có thể chọn và chưa mua giai đoạn 2 hoặc chuyển qua mua các dự án khác. Vậy mức lợi nhuận khả thi trong giai đoạn nhận nhà hoàn thiện thì <15% là hợp lý.
– Trong Trung hạn: 2-4 năm sau khi nhận nhà hoàn thiện.
Lúc này khả năng TSLN sẽ đạt 25-30% trên giá vốn. Mức độ này tùy thuộc vào vị trí căn, tầm view. Nhưng lợi thế ở giai đoạn này là có thể cho thuê. Mức lợi nhuận thu về khoản 4-5%/năm. Nhưng nếu trong trung hạn là bán thì không nên cho thuê theo phương thức full nội thất. Chi phí đầu tư nội thất cao và trong 2-3 năm không thể thu hồi vốn trên gói nội thất đầu tư được. Sau đó đến giai đoạn bán thì người mua sau họ cũng thích làm mới và theo sở thích của mình nên trường hợp làm Full nội thất sẽ không có lợi thế.
– Dài hạn trên 5 năm sau khi nhận nhà. Lúc này thì khả năng cao sẽ đạt tỷ suất lợi nhuận trên 80%.
Như phân tích trong từng mục thì có ưu điểm sẽ có nhược điểm. Vậy khi quyết định đầu tư thì Quý khách hàng nên cân nhắc và nghe tư vấn thật chi tiết, nắm bắt rõ những chi tiết dự án và xác định phù hợp với tài chính của mình trước khi ra quyết định mua.
THAM KHẢO THÊM CÁC BÀI VIẾT:
Căn hộ The Privia Khang Điền, Bình Tân
Biệt thự Nhà phố Classia Khang Điền
Chủ đầu tư Khang Điền – Những cột mốc phát triển
Dự án căn hộ MT Eastmark City Thủ Đức
Căn hộ The Beverly Solari Vinhomes Thủ Đức
Khu phức hợp căn hộ The Grand Sentosa Nhà Bè
Khu đô thị The Global City Sài Gòn
Review dự án Vinhomes Grand Park Thủ Đức
Những dự án của chủ đầu tư Masterise Homes
Tổng hợp dự án NovaWorld của Novaland
Thông tin & Danh sách dự án BCG Land – Bamboo Capital
Chuyên mục Review – Chuyên trang Bất động sản Meyreal.com
Meyreal.com – Cung cấp thông tin bất động sản toàn diện uy tín
