Chào mừng bạn đến với MEYREAL
The Classia quy mô 4,3 hecta gồm các loại hình sản phẩm Nhà phố, Biệt...
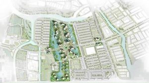
Mặt bằng thiết kế khu căn hộ Lumiere Boulevard Masteri Centre Point Quận 9 với...
Layout thiết kế căn hộ Lumiere Boulevard với các loại căn hộ 1PN, 1PN+, 2PN...
Mặt bằng thiết kế layout nhà phố The Global City có diện tích đất từ...
Mặt bằng Khu căn hộ THE BEVERLY Solari tại 3 tiểu khu The Oasis, The...
Mặt bằng thiết kế căn hộ King Crown Infinity gồm 2 tòa tháp Apollo và...
Dinh thự The Rivus do Elie Saab thiết kế với bộ sưu tập Sava –...
Layout Thiết kế căn hộ Beverly Solari chi tiết với bộ sưu tập các loại...
Tên tài khoản hoặc địa chỉ email *
Mật khẩu *
Ghi nhớ mật khẩu Đăng nhập
Quên mật khẩu?